septiembre 10, 2018Publicado por admin en septiembre 10, 2018Categorías Sin categoríaSanta Clara (9 villas)Proyecto de ejecución de 9 Viviendas en URP-RR-10 «Hospital» en Santa Clara – Marbella (Málaga)
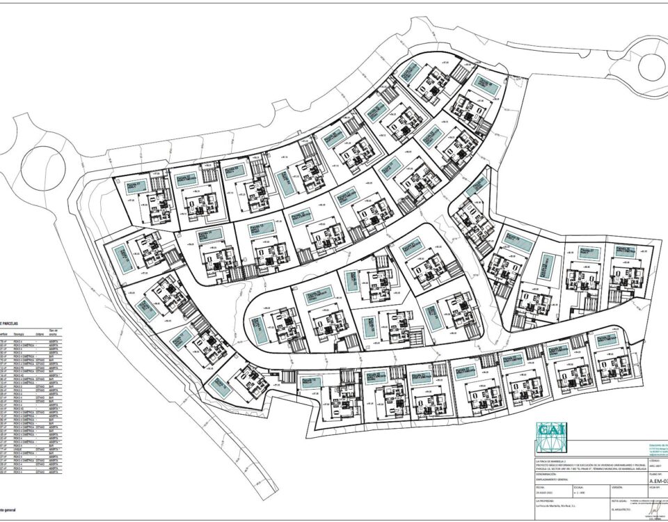
septiembre 9, 2018Publicado por admin en septiembre 9, 2018Categorías Sin categoríaPinar 18 (36 viv)36 viviendas unifamiliares en parcela Pinar 18 del URP-RR7 bis «El Pinar II» – Marbella (Málaga)
septiembre 8, 2018Publicado por admin en septiembre 8, 2018Categorías Sin categoríaLa Paloma (43 viv)43 Viviendas en bloque en la urbanización La Paloma – Manilva (Málaga)
septiembre 7, 2018Publicado por admin en septiembre 7, 2018Categorías Sin categoríaSanta María (40 viv)Proyecto básico de 40 vvdas. unifamiliares en el sector URP-VB2 en Elvira Sur – Marbella (Málaga)
enero 30, 2018Publicado por admin en enero 30, 2018Categorías Sin categoríaRecepcion Valle RomanoReforma y ampliación de la zona de recepción y restaurante de Valle Romano – Estepona (Málaga)
enero 29, 2018Publicado por admin en enero 29, 2018Categorías Sin categoríaSpa Valle RomanoAdecuación de locales para su uso como gimnasio y Spa en Valle Romano – Estepona (Málaga)
septiembre 6, 2017Publicado por admin en septiembre 6, 2017Categorías Sin categoríaCamino de Las MesasProyecto de urbanización del SUP-R5 “Camino de Las Mesas” – Estepona (Málaga)
septiembre 5, 2017Publicado por admin en septiembre 5, 2017Categorías Sin categoríaRio Real URP-RR5Adaptación del plan parcial del sectorURP-RR5 «Rio Real 2ªfase» – Marbella (Málaga)
septiembre 4, 2017Publicado por admin en septiembre 4, 2017Categorías Sin categoríaLa CarolinaProyecto de ejecución de 56 Viviendas en Parcela 10 de la urb. La Carolina – Marbella (Málaga)